产品目录
液体涡轮流量计
液体流量计
水流量计
油流量计
气体涡轮流量计
椭圆齿轮流量计
电磁流量计
涡街流量计
蒸汽流量计
孔板流量计
旋进旋涡流量计
热式气体质量流量计
转子流量计
浮子流量计
靶式流量计
气体流量计
超声波流量计
磁翻板液位计
浮子液位计
浮球液位计
玻璃管液位计
雷达液位计
超声波液位计
投入式液位计
压力变送器
差压变送器
液位变送器
温度变送器
热电偶
热电阻
双金属温度计
推荐产品
联系我们
- 金湖凯铭仪表有限公司
- 联系电话:15195518515
- 在线客服:1464856260
- 电话:0517-86801009
- 传真号码:0517-86801007
- 邮箱:1464856260@qq.com
- 网址:http://m.bhdmvez.cn
- 地址:江苏省金湖县理士大道61号
涡街流量计的原理及结构组成
涡街流量计是一种常用的流量测量仪表,它能够对各种流体介质的流量进行测量,广泛应用于石油、化工、冶金、水处理等行业。涡街流量计的工作原理是基于涡街效应的,它利用介质流动时的涡街运动来进行流量测量。本文将深入介绍涡街流量计的内部构造和工作原理,以便更好地理解它的工作原理。
一、工作原理
在流体中设置旋涡发生体(阻流体),从旋涡发生体两侧交替地产生有规则的旋涡,这种旋涡称为卡曼涡街,如图1所示。旋涡列在旋涡发生体下游非对称地排列。设旋涡的发生频率为f,被测介质来流的平均速度为U,旋涡发生体迎面宽度为d,表体通径为D,根据卡曼涡街原理,有如下关系式
f=SrU1/d=SrU/md (1)式中
U1--旋涡发生体两侧平均流速,m/s;
Sr--斯特劳哈尔数;
m--旋涡发生体两侧弓形面积与管道横截面面积之比

图1 卡曼涡街
管道内体积流量qv为
qv=πD2U/4=πD2mdf/4Sr (2)
K=f/qv=[πD2md/4Sr]-1 (3)
式中K--流量计的仪表系数,脉冲数/m3(P/m3)。
K除与旋涡发生体、管道的几何尺寸有关外,还与斯特劳哈尔数有关。斯特劳哈尔数为无量纲参数,它与旋涡发生体形状及雷诺数有关,图2所示为圆柱状旋涡发生体的斯特劳哈尔数与管道雷诺数的关系图。由图可见,在ReD=2×104~7×106范围内,Sr可视为常数,这是仪表正常工作范围。当测量气体流量时,VSF的流量计算式为

图2 斯特劳哈尔数与雷诺数关系曲线
式中 qVn,qV--分别为标准状态下(0oC或20oC,101.325kPa)和工况下的体积流量,m3/h;
Pn,P--分别为标准状态下和工况下的绝对压力,Pa;
Tn,T--分别为标准状态下和工况下的热力学温度,K;
Zn,Z--分别为标准状态下和工况下气体压缩系数。
由上式可见,VSF输出的脉冲频率信号不受流体物性和组分变化的影响,即仪表系数在一定雷诺数范围内仅与旋涡发生体及管道的形状尺寸等有关。但是作为流量计在物料平衡及能源计量中需检测质量流量,这时流量计的输出信号应同时监测体积流量和流体密度,流体物性和组分对流量计量还是有直接影响的。
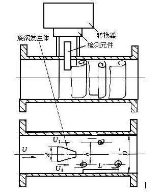
二、结构
VSF由传感器和转换器两部分组成,如图3所示。传感器包括旋涡发生体(阻流体)、检测元件、仪表表体等;转换器包括前置放大器、滤波整形电路、D/A转换电路、输出接口电路、端子、支架和防护罩等。近年来智能式流量计还把微处理器、显示通讯及其他功能模块亦装在转换器内。

图3 涡街流量计
(1)旋涡发生体
旋涡发生体是检测器的主要部件,它与仪表的流量特性(仪表系数、线性度、范围度等)和阻力特性(压力损失)密切相关,对它的要求如下。
1)能控制旋涡在旋涡发生体轴线方向上同步分离;
2)在较宽的雷诺数范围内,有稳定的旋涡分离点,保持恒定的斯特劳哈尔数;
3) 能产生强烈的涡街,信号的信噪比高;
4) 形状和结构简单,便于加工和几何参数标准化,以及各种检测元件的安装和组合;
5) 材质应满足流体性质的要求,耐腐蚀,耐磨蚀,耐温度变化;
6) 固有频率在涡街信号的频带外。
已经开发出形状繁多的旋涡发生体,它可分为单旋涡发生体和多旋涡发生体两类,如图4所示。单旋涡发生体的基本形有圆柱、矩形柱和三角柱,其他形状皆为这些基本形的变形。三角柱形旋涡发生体是应用*广泛的一种,如图5所示。图中D为仪表口径。为提高涡街强度和稳定性,可采用多旋涡发生体,不过它的应用并不普遍。

d/D=0.2~0.3;c/D=0.1~0.2;
b/d=1~1.5;θ=15o~65o
⑵ 检测元件
流量计检测旋涡信号有5种方式。
1)用设置在旋涡发生体内的检测元件直接检测发生体两侧差压;
2)旋涡发生体上开设导压孔,在导压孔中安装检测元件检测发生体两侧差压;
3)检测旋涡发生体周围交变环流;
4)检测旋涡发生体背面交变差压;
5) 检测尾流中旋涡列。
根据这5种检测方式,采用不同的检测技术(热敏、超声、应力、应变、电容、电磁、光电、光纤等)可以构成不同类型的VSF,如表1所示。
表1 旋涡发生体和检测方式一览表

检测元件把涡街信号转换成电信号,该信号既微弱又含有不同成分的噪声,必须进行放大、滤波、整形等处理才能得出与流量成比例的脉冲信号。⑶ 转换器不同检测方式应配备不同特性的前置放大器,如表2所列。

⑷ 仪表表体
仪表表体可分为夹持型和法兰型,如图7所示。

相关资讯
- 涡街流量计产生误差是什么原因
- 涡街流量计不归零处理方法
- 涡街流量计与靶式流量计性能对比
- 涡街流量计抗震解决办法
- 涡街流量计与平衡流量计的区别
- 涡街流量计有什么用途
- 涡街流量计的性能特点
- 涡街流量计波动的原因分析与解决方案
- 介质密度对涡街流量计的影响
- 涡街流量计和孔板流量计的区别
- 涡街流量计夹持式与法兰式的区别
- 涡街流量计维护注意事项
- 涡街流量计的测量精度
- 管道振动对涡街流量计的影响
- 涡街流量计与旋进旋涡流量计有什么区别
- 涡街流量计的分类有哪些
- 涡街流量计有哪些连接方式
- 涡街流量计的适用范围
- 涡街流量计对直管段有什么要求
- 影响涡街流量计测量不准确的因素
- 涡街流量计无输出故障原因分析
- 涡街流量计为什么要温压补偿
- 涡街流量计的应用领域
- 涡街流量计无显示原因与检查处理
- 涡街流量计的正确使用方法
- 涡街流量计的原理及结构组成
- 涡街流量计的优缺点有哪些
- 涡街流量计常见故障分析与处理
- 涡街流量计规格型号参数说明
- 涡街流量计传感器接线图

